Leased

BOOK AN INSPECTION NOW LIVE

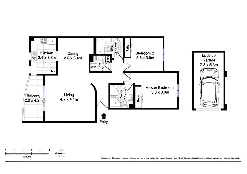
This well-appointed apartment is within an easy stroll to North Sydney, parkland, schools, shops, cafes and the future Metro Rail.

Solid full brick construction with separate living and dining, Two good size bedroom, master with separate shower and bathtub in ensuite bathroom
Internal laundry, built in cupboard, single lock up garage with double security.

Northern aspect balcony off the living room. Sculptured landscape garden surroundings.

Lease: 6/12 months

Pets: Not permitted

Application: https://t-app.com.au

Book an inspection: http://calendly.com/huhqmv/ofi

 

Features

Balcony
2 2 1
Available Leased
Address 20, 22 Ridge Street, North Sydney
Price ||| NEW ||| $690 per week
Property Type Rental
Property ID 866
Category Apartment

Agent Details

Mitchell Vukovic photo

Mitchell Vukovic

02 9955 3311
View Profile