Leased

EXECUTIVE TOWNHOUSE WITH CITY & BRIDGE VIEWS

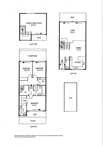
Renovated sunny tri-level unfurnished townhouse set in boutique development of five. Offering 3 bedrooms plus 1 large loft style room and 2.5 bathrooms. 

All bedrooms and living room with terrace access, master bedroom with ensuite and walk-in-robe. Large loft area suitable as a fourth bedroom, home office or additional living area.

Two Carrera marble bathrooms fitted with frameless showers, Bamberger bathtub and Vola /European tap ware and heated towel rails plus a separate powder room in the living area for guests. Spacious /airy and open living area flows out to a generous terrace which offers harbour glimpses and city views.

Designer kitchen fitted with Miele appliances & electric stove. Heated mirrors and floors in the dining room /kitchen and all bathrooms. Separate laundry with granite bench top & flooring and dryer. Lock up garage, close to transport and shops. 

Secure visotor carpark 

Total area of the lot 365sqm

Lease: 6/12 months

Pets: No

APPLY ONLINE by entering this link into your browser: https://t-app.com.au/huhq

4 2 1
Available Leased
Address 1-3 Winter Avenue, Neutral Bay
Price $950 per week
Property Type Rental
Property ID 922
Category Townhouse

Agent Details

RENTAL ENQUIRY photo

RENTAL ENQUIRY

0422446512
View Profile
Mitchell Vukovic photo

Mitchell Vukovic

02 9955 3311
View Profile